The Proposed Building

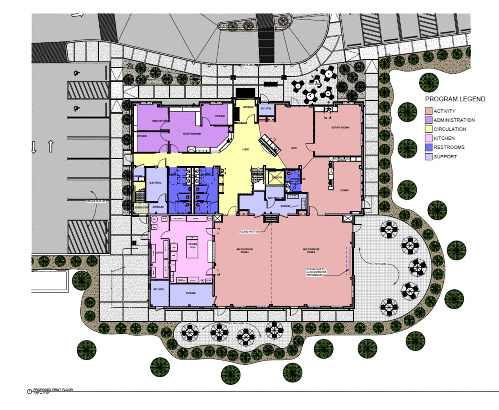
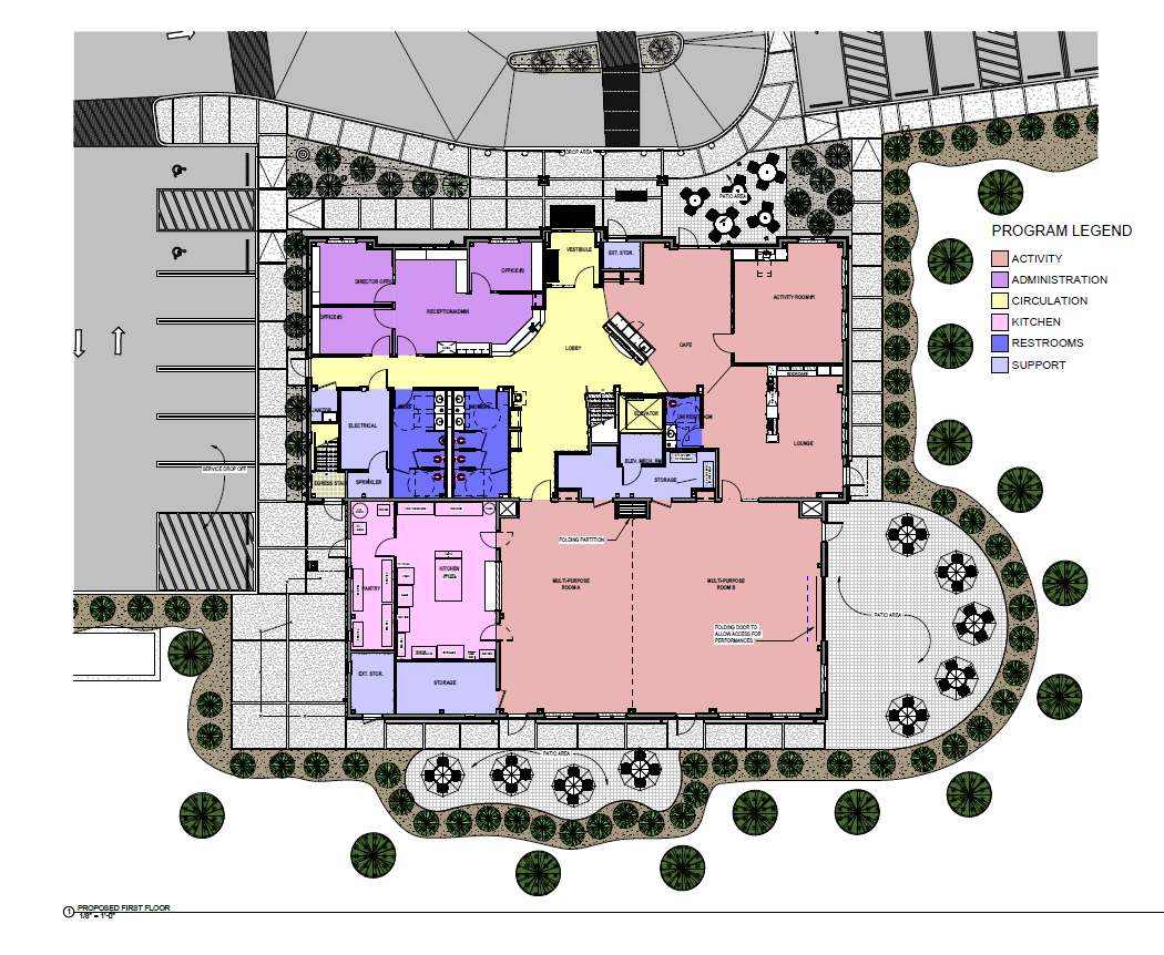
First Floor

The first floor will feature a coffee bar/cafe, small activity room, quiet lounge space with a fireplace, and a commercial kitchen adjacent to a large multi-purpose room for meals, group fitness, and special programs.  Visitors will be greeted at the reception desk, and staff space will provide privacy and productivity.  Outside features include ADA-compliant sidewalks and patios, with ample parking for everyday and special events.

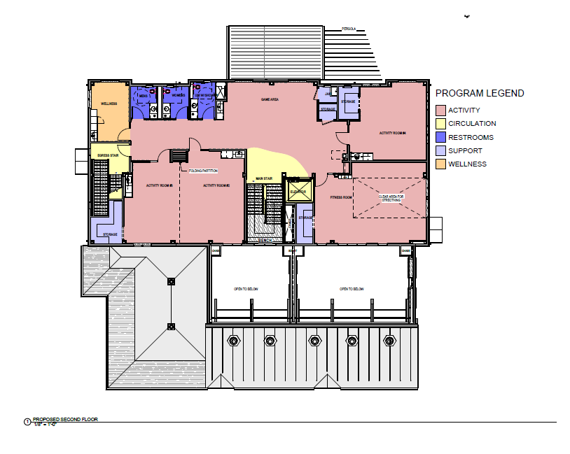
Second Floor

The second floor will be accessible by either a large elevator or older adult friendly (low rise) staircase. Amenities include a game room, card/game area, gym with cardio and strength equipment, arts and crafts/maker space, wellness room, and additional flexible programming space.

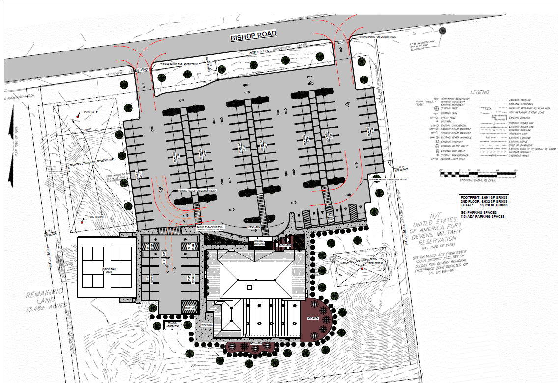
Bishop Road Site

The proposed new senior center will be conveniently located near downtown on Bishop Road, approximately a half mile from Park Street.  The land is owned by the Town and currently under the control of the DPW.